Companies typically contact CETC to supply raw material handling systems to receive and feed alloys, fluxes, and either DRI or HBI to the melt shop. Shown (below) is a flow diagram of these systems.

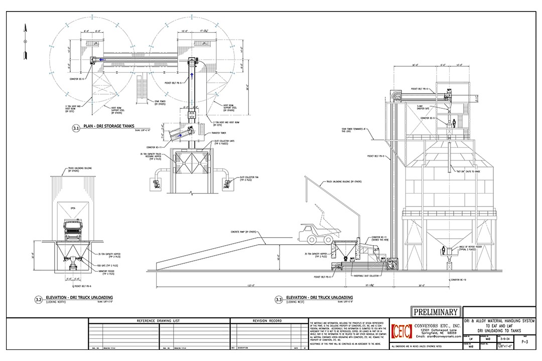
Upon gaining an understanding of the requirements to send these materials to the processing equipment inside the melt shop CETC prepares preliminary layouts (see below) followed by a detailed cost estimate and division list that breaks down costs by area for the overall material handling system. Once accepted by our client, CETC will prepare a schedule for the complete project.




